BAHÇELİEVLER ÜÇLER SİTE
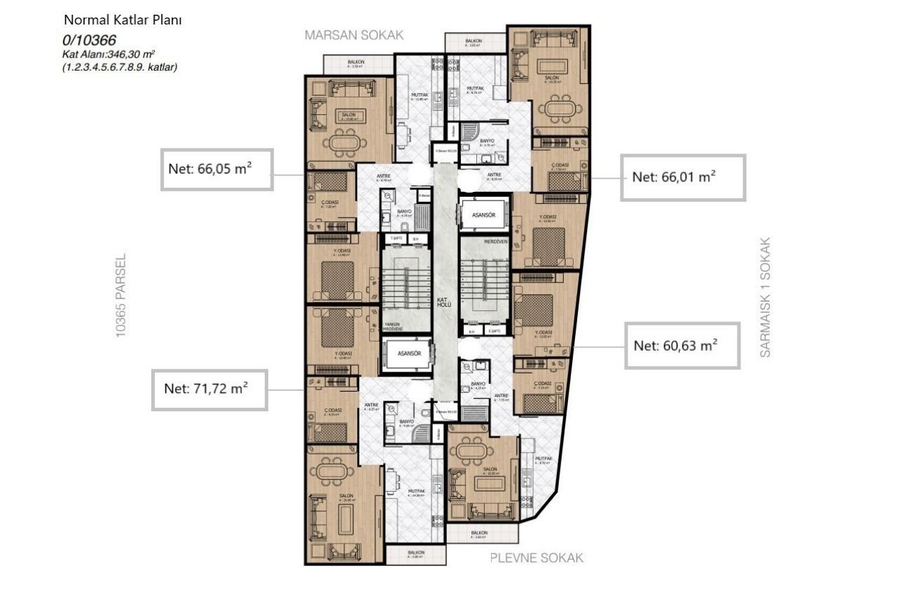
İstanbul’un Bahçelievler İlçesi’nde yer alan proje yoğun konut bölgesi arasında konumlanan 3 riskli yapının dönüştürülme projesidir. Her biri 10’ar katlı olan yeni yapılar, bünyesindeki toplam 150 adet 2+1 konut tipindeki daireyi kullanıcılarına sunmaktadır. Üç ayrı parselde 2.353,83 m²’lik alan üzerinde tasarlanan projenin toplam inşaat alanı 15.576,36 m²’dir. Yapıların zemin altında kalan katlarında otopark, sığınak ve depo gibi teknik hacimlerin çözümlemesi planlanmıştır. Yıkımı gerçekleşmiş olup inşaat aşamasında olan projenin teslim süresi 24 aydır.

